Deglava Rezidence

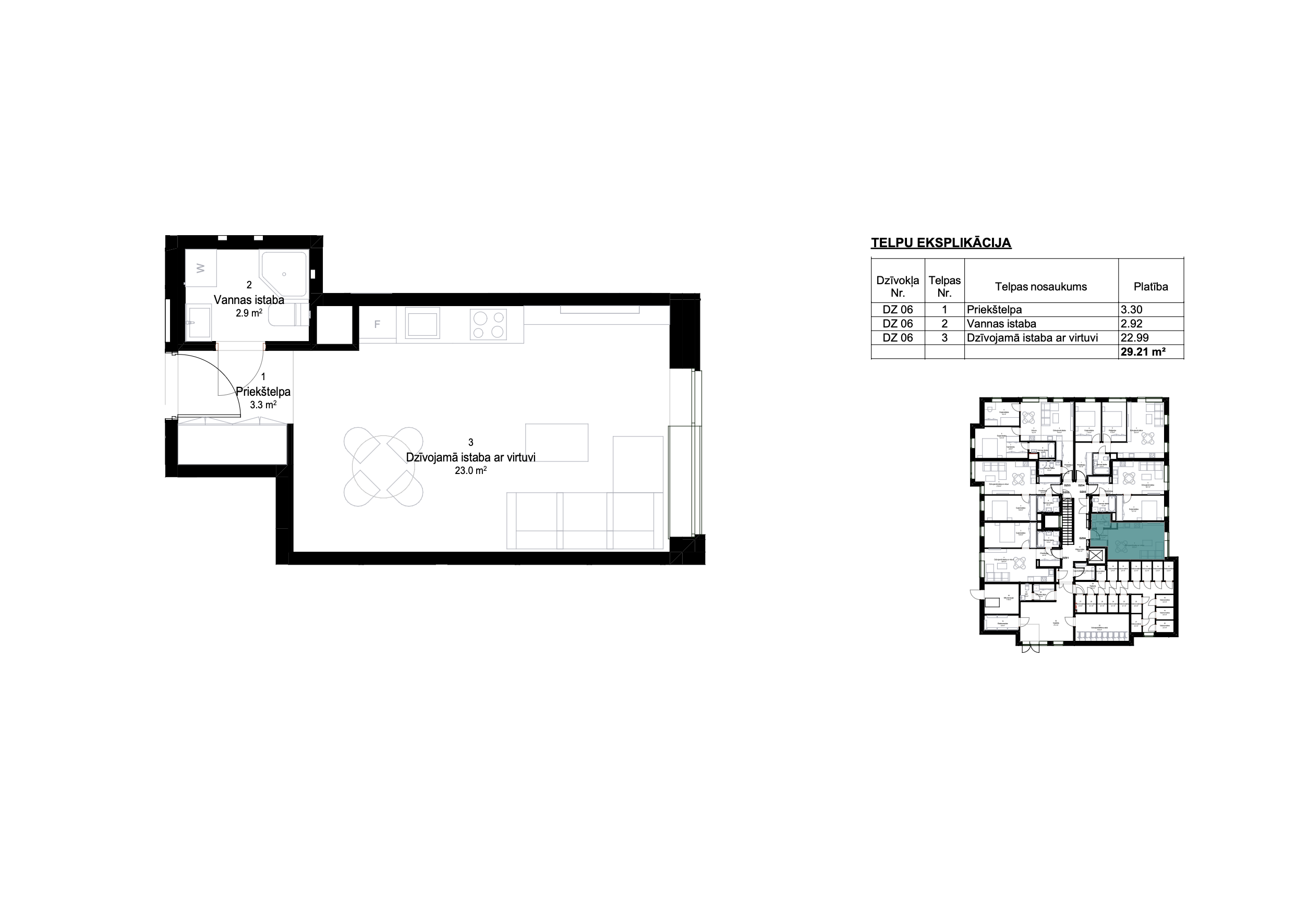
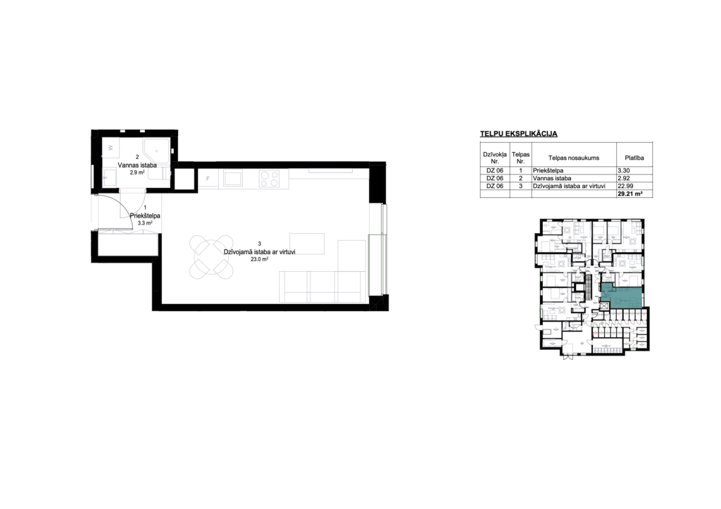
Dzīvoklis Nr.

6

ēka

REMBRANDT

pārdots

Informācija

1

Istabas

1

Stāvs

A

Debesspuse

29,21 m²

Platība

29,21 m²

Kopējā platība

Ēkas konstrukcijas

  • Slodzi nesoša konstrukcija – saliekamās dzelzsbetona sienas, grīdas un griesti;
  • Ārsienas – saliekamā dzelzsbetona trīsslāņu sienu paneļi ar iestrādātu 200 mm siltumizolāciju.
  • Krāsota, viegli tīrāma virsma, ar ilgtermiņa aizsardzību pret mikroorganismiem.
  • Sienas starp dzīvokļiem sastāvēs no saliekamām dzelzsbetona elementiem, lai nodrošinātu nepieciešamo izturību, kā arī optimālu temperatūru un trokšņu līmeni.
  • Dzīvokļos starpsienas- metāla karkasa apšūts ar ģipškartonu divās kārtās no abām pusēm.

Apkure, ūdensapgāde un ventilācijas sistēmas

  • Katrā istabā ārsienā iemontēta Ø100 ventilācijas/rekuperācijas iekārta –ar siltuma atgūšanu.
  • Katram dzīvoklim paredzēts individuālais elektroniski nolasāms siltuma skaitītājs, aukstā un siltā ūdens skaitītājs.
  • Centralizēta pilsētas kanalizācijas sistēma, siltumapgāde un ūdensapgāde.
  • Ēkas apkure paredzēta ar tērauda plākšņu radiatoru apkures sistēmu. Radiatori ar regulējamiem termostatiem;
  • Mehāniskā gaisa nosūces sistēma ir paredzēta no vannas telpām, (ventilators darbojas, ieslēdzot apgaismojuma slēdzi) un virtuvēm.
  • Vannas istabās elektriski apsildāmās grīdas ar termoregulatoru.

Apdare – Logi, Durvis

  • Visos stāvos PVC logi ar 3-kāršo stikla paketi
  • Dzīvokļu ārējās durvis – Ugunsdrošas EI30, aprīkotas ar “actiņu” un slēdzeni.
  • Dzīvokļa iekšējās durvis – laminētas durvis ar koka karkasu un skaņas izolējošu materiālu.

Iekšējā apdare

  • Sienas špaktelētas un krāsotas ar mazgājamo sienas krāsu, špaktelēti un krāsoti griesti.
  • Vannas istabā uz sienām un grīdas 60cm x 60 cm akmens masas flīzes.
  • Akmens masas vannas un duškabīnes pamatnes (dzīvokļos ar dušām).
  • Ūdens jaucējkrāni, izlietnes un WC podi.
  • Dzīvojamās istabās, virtuvēs un guļamistabās lamināta grīda segums (32. klase, 8 mm) ar skaņas izolējošo kārtu.

Elektroinstalācija un vājstrāva

  • Elektrotīkls ar aizsardzību pret nejaušu elektriskās strāvas triecienu.
  • 3-fāzu pieslēgums elektrotīkliem. Katram dzīvoklim savs elektrības kontrolskaitītājs.
  • Katrā istabā rozetes un slēdži, izbūvēti izvadi gaismas ķermeņiem katrā istabā, nodrošinātas pieslēguma vietas virtuves tehnikai.
  • TV kontaktligzda dzīvojamā istabā, optiskā interneta kabelis priekšnamā;
  • Domofons un piekļuves kontrole.

Koplietošanas telpas

  • Flīzēti grīdas segumi.
  • Sienas krāsotas ar mazgājamo sienas krāsu.
  • Viens lifts katrā ēkā.
  • Iebūvētas vai redzamas iekšējā apgaismojuma sistēmas.
  • Noslēgtas kontaktligzdas ar aizsardzību tehniskām telpām.
  • Pastkastītes + ziņojumu dēlis.
Rebrandt

Atstājiet mums ziņu un mēs ar Jums sazināsimies.

Oskars Lubavs

Pārdošanas vadītājs

Ieva Galvanovska

Pārdošanas speciāliste
Materiālos izmantotajām projekta un dzīvokļu vizualizācijām ir informatīvs raksturs. Būvniecības laikā, fasādes, apdare un tehniskās specifikācijas var tikt pārveidotas bez iepriekšēja brīdinājuma ievērojot jebkuru noslēgta līguma noteikumus.
© 2026.DEGLAVA REZIDENCE. All rights reserved

Deglava Gleznotāju rezidences 3. kārta ir klāt!

Esi viens no pirmajiem, kurš rezervē dzīvokli Picasso vai Rembrandt ēkās.
Atstāj savu epastu un mēs ar Tevi sazināsimies!
Pieteikuma forma popup

Vai izvēlies kādu no pilnībā gataviem dzīvokļiem Dali ēkā!